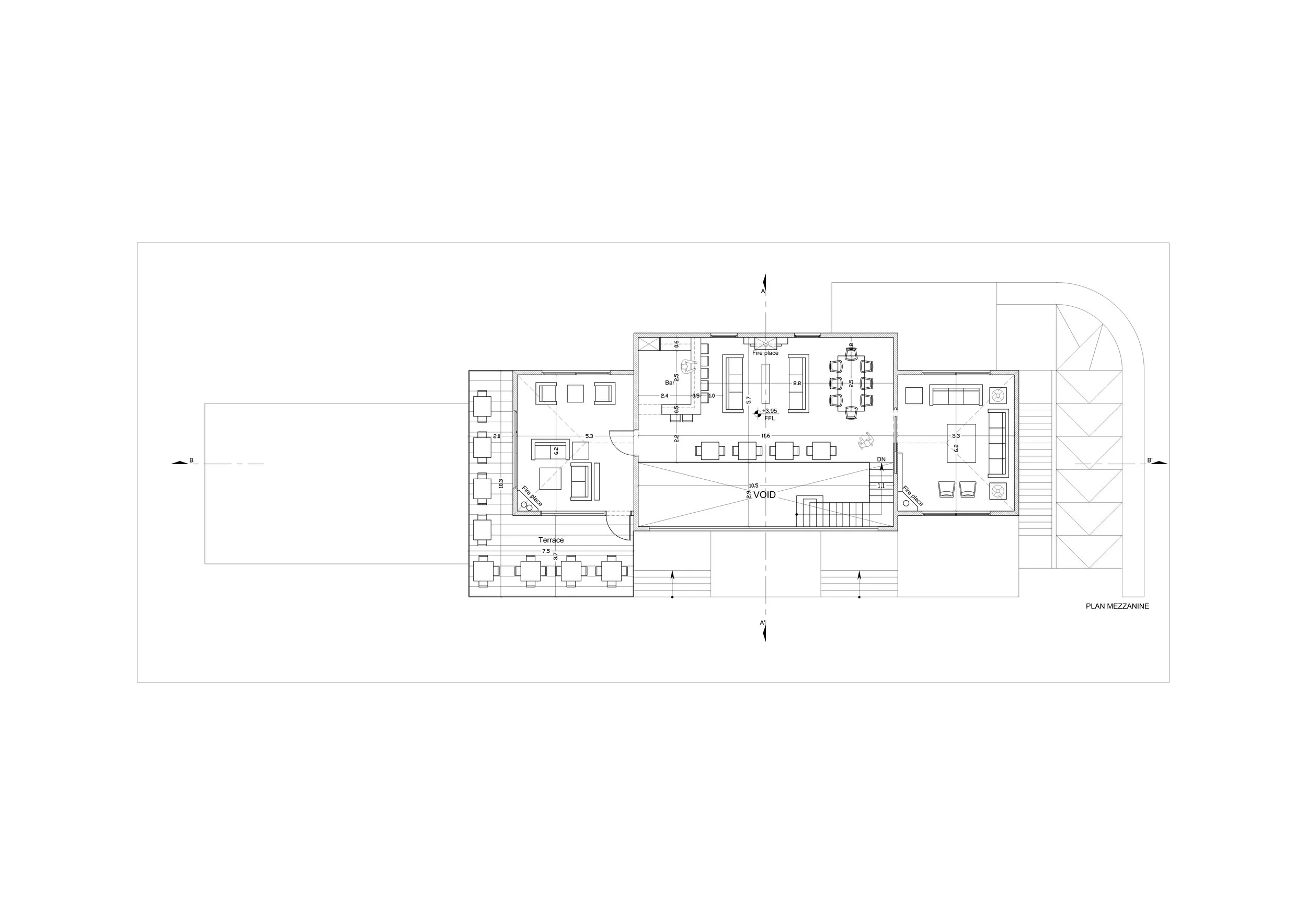
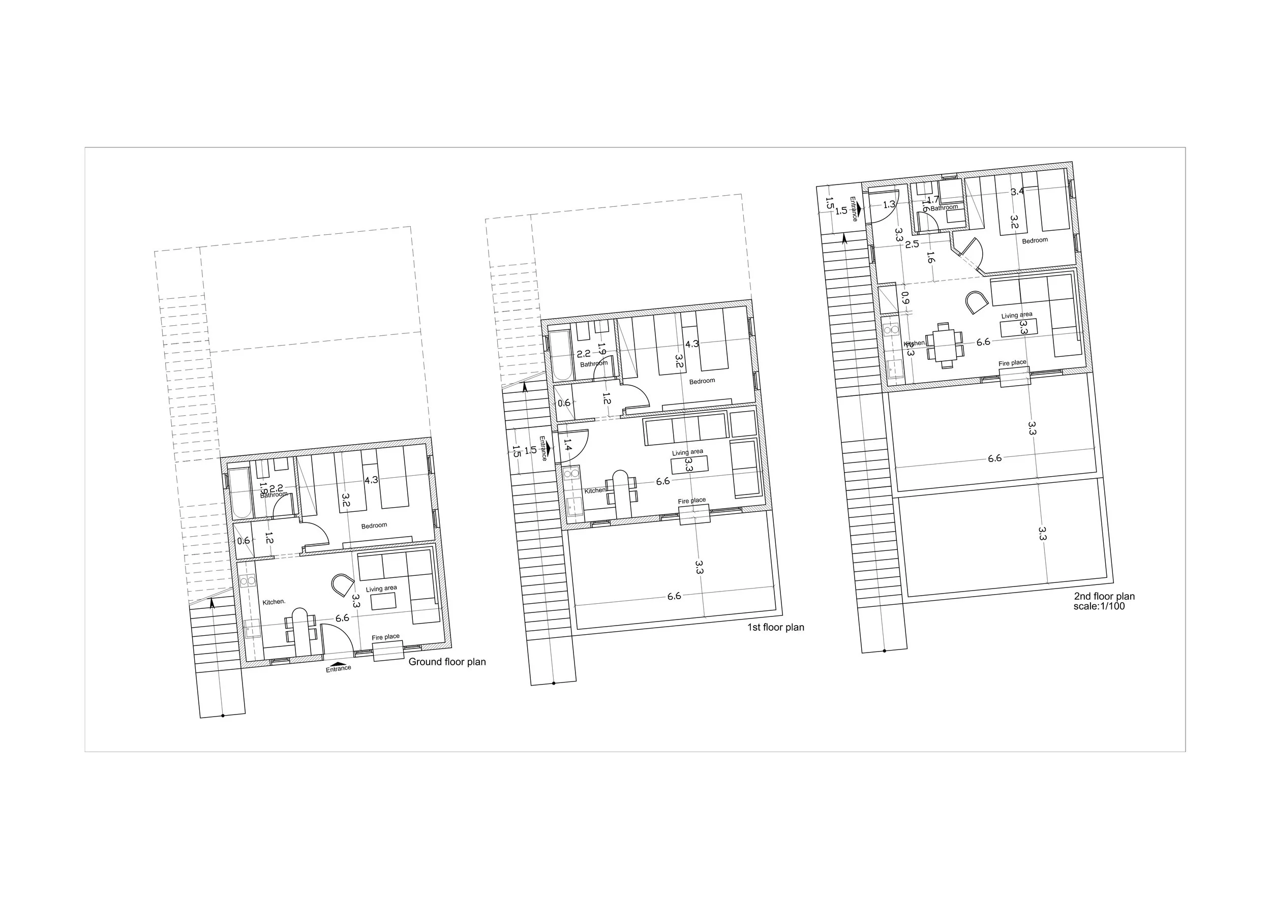
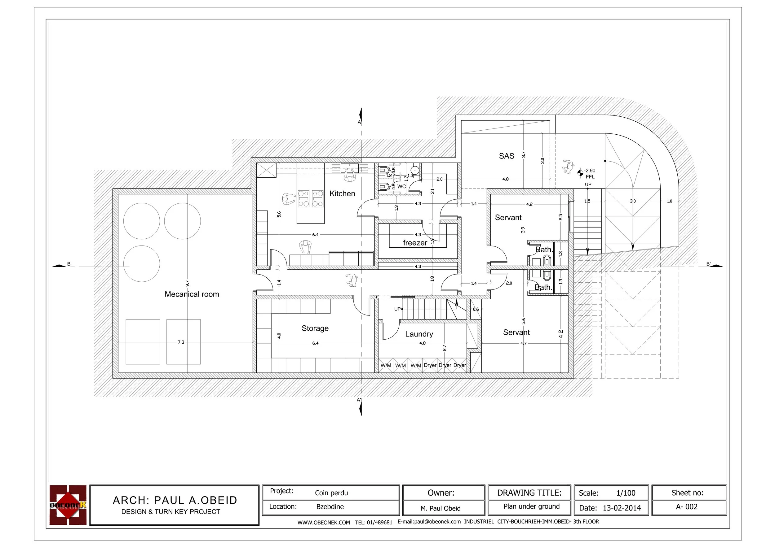
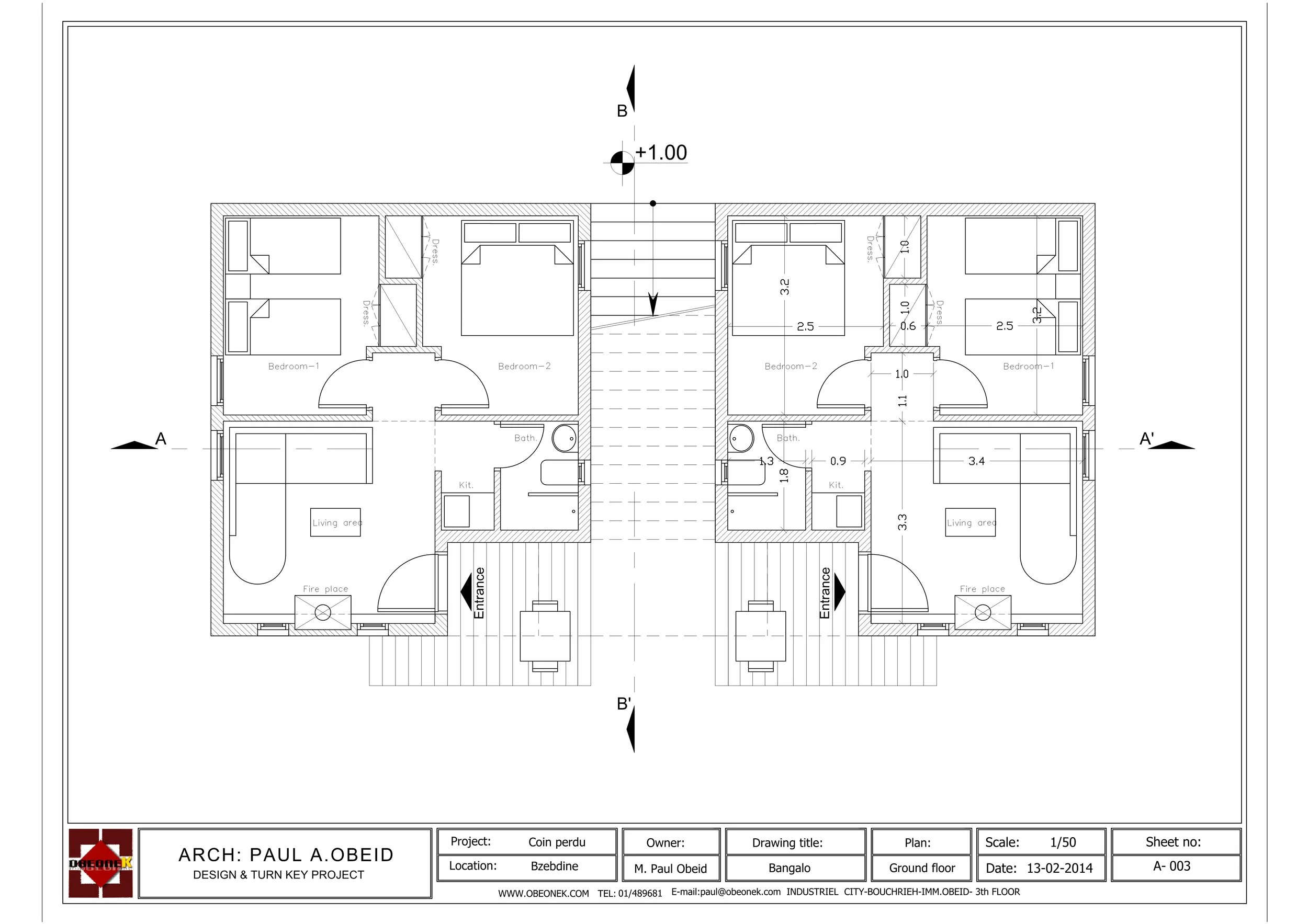
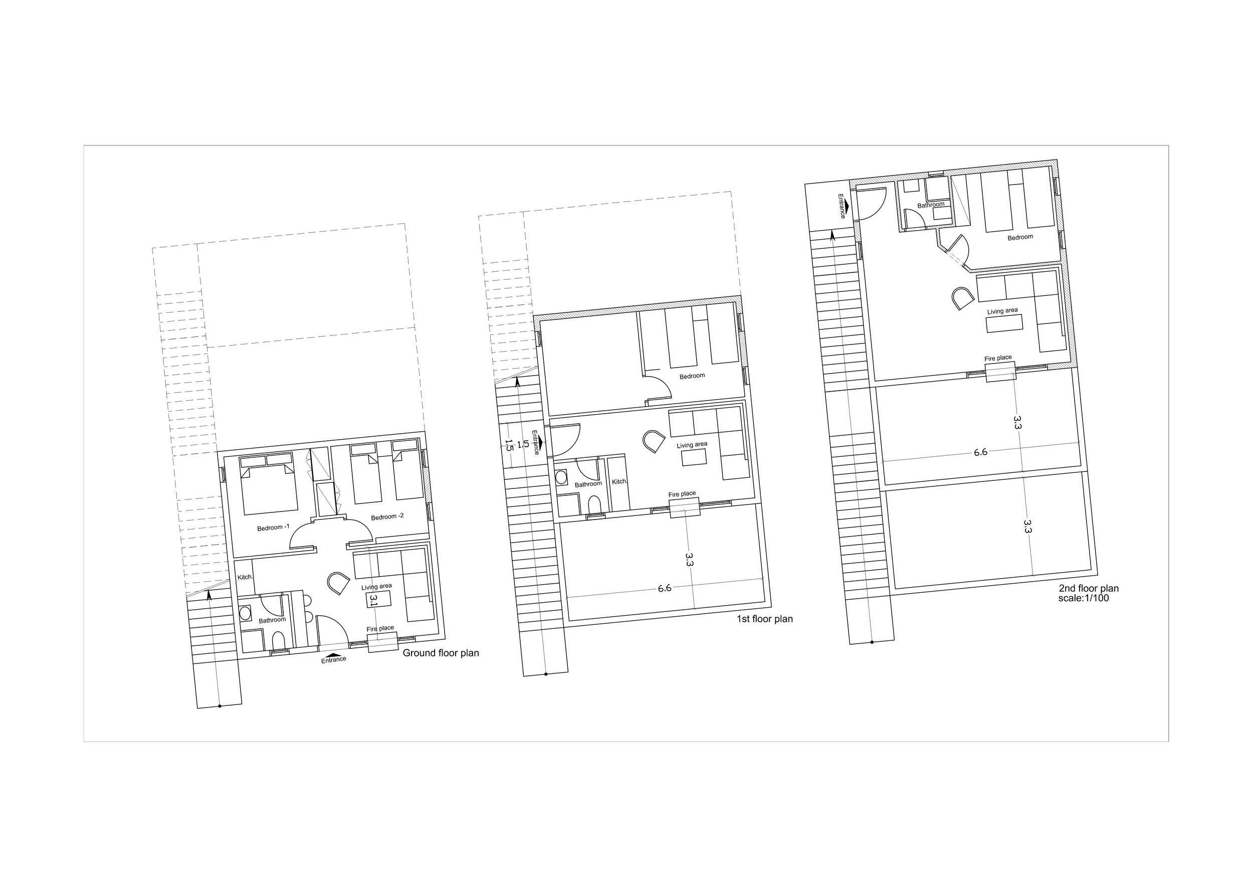
Le Coin Perdu

This project creates the space for a couples or family retreat in nature.

 

The idea behind this concept stems from its name “Le Coin Perdu” or The Lost Corner which alludes to a hidden or forgotten spot in the world where people can just relax and unwind. Couples and Families can rent out these eco friendly units while they enjoy the tranquility of mother nature’s forests. Along these wonderful and minimalistic homes there would be spots to just hang on a hammock, enjoy means from the common hall or take quick dip in the pool. People could even rent out one of the larger more unique models on the property if needed.

Previous
Previous

Bellaire Pool & Patio

Next
Next

Residential Backyard